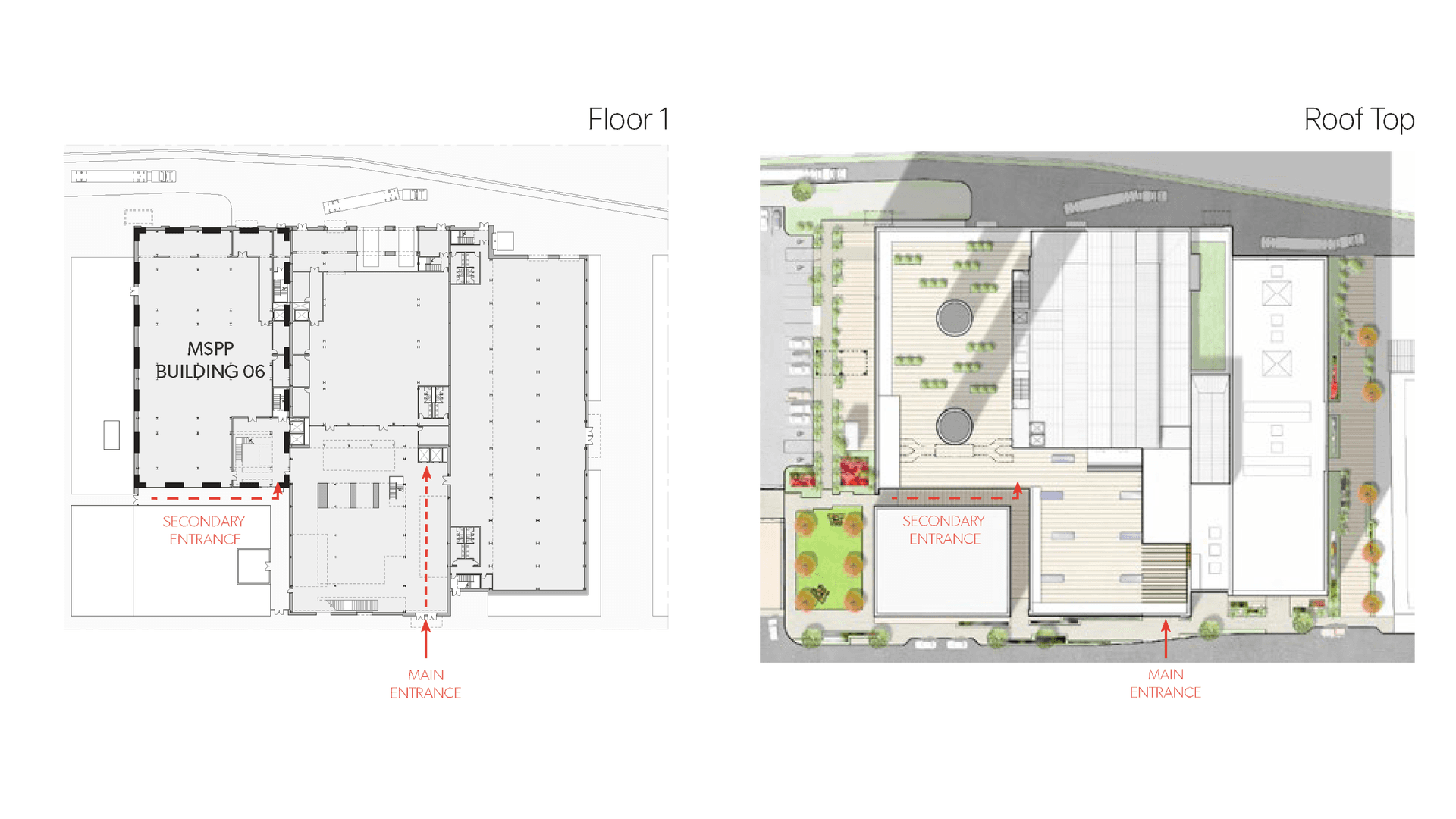
Urban Designer • Public Realm • Experiential Interventions
Combining corporate scale project delivery with hands on public realm, placemaking, and ephemeral architecture. Background spans urban interventions, adaptive reuse, and experiential public work. Strong at translating strategy into spatial concepts, leading multidisciplinary teams, and delivering design work that shapes how people experience cities.
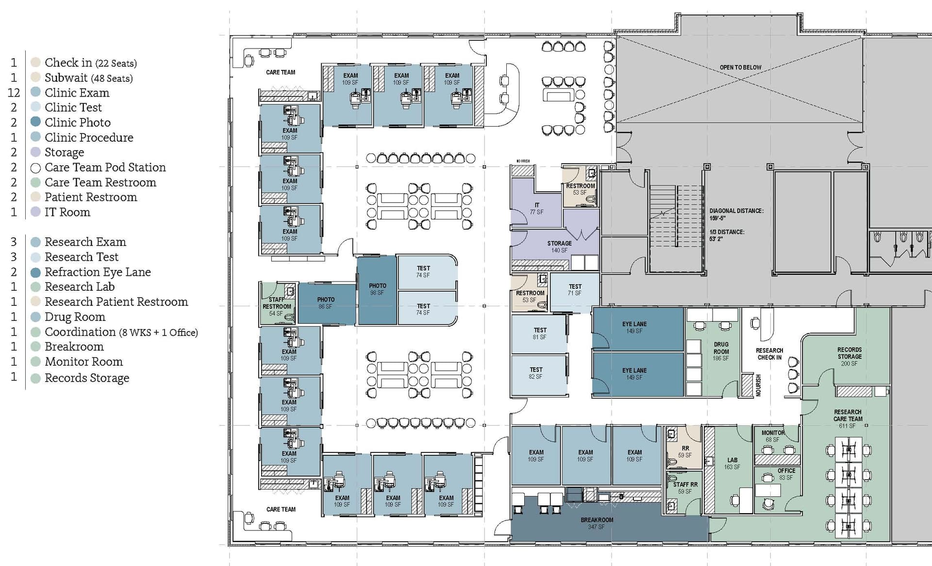
Narratives, diagrams, frameworksHuman behavior + MovementTime Based ChangeRhino / Revit / SketchUp / Adobe














































